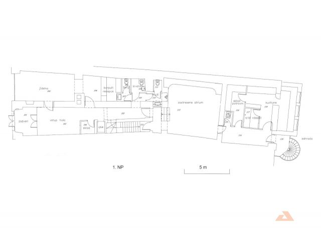
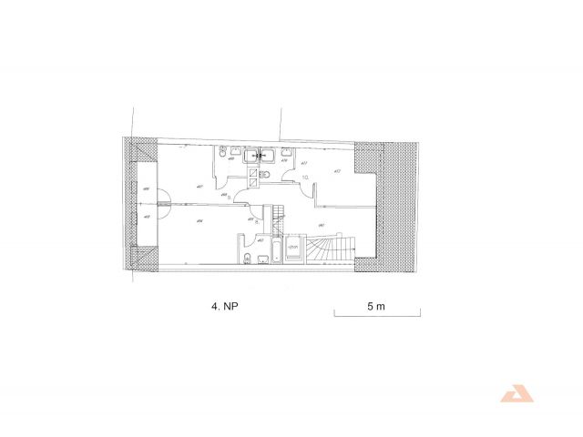
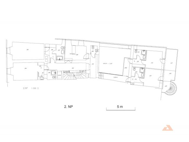
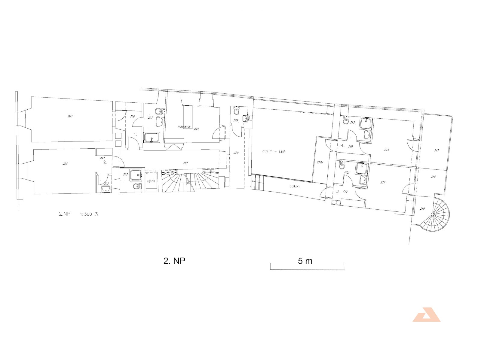
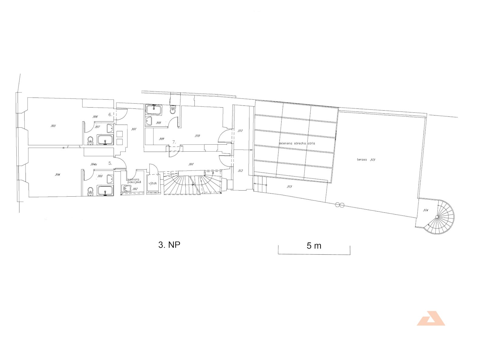
Nabízíme k prodeji unikátní nemovitost - hotel s restaurací a terasou na hradbách, který se nachází na náměstí v historickém centru královského města Louny. Tento polyfunkční objekt prošel kompletní, nákladnou rekonstrukcí a v roce 2011 byl rekolaudován jako ubytovací zařízení s restaurací. Klíčové parametry nemovitosti: Lokalita: historické centrum města Louny - nejprestižnější adresa ve městě. Dispozice: 1 podzemní podlaží, 4 nadzemní podlaží a využité podkroví. Kapacita: 10 plně vybavených pokojů (6 dvoulůžkových, 4 jednolůžkové). Vybavení: Osobní výtah, vybavená kuchyně, lobby bar, zastřešené atrium. Navíc: Venkovní terasa postavená přímo na městských hradbách se zastřešeným pódiem. Bonus: Nemovitost je nabízena včetně inventáře a vybavení. Dispoziční řešení objektu: 1. PP (Suterén): Technické a provozní zázemí domu. Nachází se zde skladové prostory, strojovna výtahu a zázemí pro personál. Dále jsou zde umístěny toalety pro hosty venkovní terasy. 1. NP (Přízemí): Vcházíme přes zádveří do vstupní haly, ze které je přístupný bar s recepcí, na který navazuje elegantní lobby bar s výhledem na náměstí. Dále zde nalezneme unikátní zastřešené atrium, které slouží jako stylová jídelna. Součástí podlaží je plně vybavená profesionální kuchyně a toalety pro hosty. 2., 3. a 4. NP (Ubytovací část): Celkem 10 komfortních pokojů s vlastními koupelnami. Pokoje nabízí výhledy buď na historické náměstí, nebo na panorama Českého středohoří. Ze 3. NP je navíc přímý vstup na horní venkovní terasu, která nabízí panoramatický výhled na řeku Ohři a České středohoří. 5. NP (Podkroví): Vyhrazeno pro technologie, nachází se zde kotelna zajišťující vytápění a ohřev vody, serverovna, satelitní a TV rozvody a kompletní IT infrastruktura pro vysokorychlostní internet v celém objektu. Venkovní prostory: V severní části objektu se nachází prostorná venkovní terasa vybudovaná přímo na středověkých městských hradbách. Terasa disponuje zastřešeným pódiem a je využívána pro koncerty, svatby a další kulturní akce, dříve byla využívána jako zahradní restaurace. Pódium je zkolaudováno jako přístřešek pro zahradní nábytek. Technický stav: Objekt je v provozu od roku 2011 a byl průběžně udržován, přesto je třeba počítat s investicemi do modernizace či obnovení prvků krátkodobé životnosti. Upozorňujeme na potřebu opravy netěsnosti střešního pláště v severovýchodním rohu atria (nutnost opravy zatékání). Tato skutečnost je zohledněna v nabídkové ceně. Investiční potenciál: Výborná dostupnost: Louny leží na strategické spojnici mezi Prahou a SRN. Dálnice D7: Blížící se dokončení dálnice D7 výrazně zkracuje dojezdovou vzdálenost do Prahy, což predikuje předpoklad růstu cen nemovitostí v této lokalitě. Využití: Objekt je koncipovaný jako hotel s restaurací, ale díky své dispozici nabízí i potenciál pro přestavbu na luxusní bytový dům nebo reprezentativní sídlo firmy. Vzhledem ke skutečnosti, že nebyl předložen PENB, uvádíme třídu energetické náročnosti "G". Měli byste zájem o zaslání podrobnější technické dokumentace nebo o sjednání termínu prohlídky? Neváhejte nás kontaktovat.