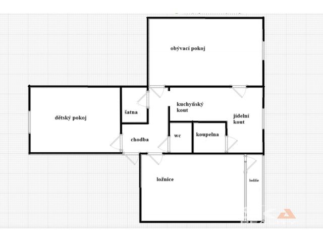
Nabízíme k prodeji velmi prostorný byt v osobním vlastnictví o dispozici 3+1 s lodžií a celkové podlahové ploše 80 m². Byt se nachází ve 2. nadzemním podlaží (1. patře) revitalizovaného panelového domu v klidné západní části města Louny, v ulici Přemyslovců. Dům prošel kompletní revitalizací, má zateplenou fasádu a vyměněné stoupací vedení IS. Vytápění objektu je řešeno centrálně dálkově. Byt je aktuálně v původním udržovaném stavu, což představuje ideální příležitost pro budoucí majitele k rekonstrukci přesně dle jejich představ, ačkoli je ihned obyvatelný. Praktická dispozice zahrnuje vstupní chodbu s šatnou, samostatnou toaletu a koupelnu s vanou (umakartové jádro), dále kuchyň s jídelním koutem, obývací pokoj, dětský pokoj a ložnici. Z ložnice je přístup na prostornou lodžii o velikosti přibližně 3m2. Všechny pokoje jsou světlé a prostorné, orientace oken na východ a západ. K bytu náleží velkorysé úložné prostory - komora na chodbě (1m2) a mimořádně velká sklepní kóje (8m2). Tyto plochy nejsou započítány v uvedené výměře bytu, stejně tak výměra lodžie. Dům je umístěn v klidné lokalitě, přímo za ním najdete zeleň a dětské hřiště. Veškerá občanská vybavenost (škola, školka, obchody, MHD) je v dosahu. Doporučujeme osobní prohlídku.